«PinUp»
Цена:
629 000₸
Читайте подробнее об уникальнойтехнологии I-SIPикаркасных домах из двутавровых балок!
Ипотека на строительство
Мы работаем со СберБанком и Россельхозбанком на специальных «PinUp» Для вас пониженные ставки и упрощенный порядок получения ипотеки.
Получите бесплатную консультацию:
Астана:+7 (747) 328-77-44
Алматы:+7 (747) 328-77-44
Альметьевск:+7 (747) 484-80-55
Астана:+7 (747) 328-77-44
Описание проекта
Проектное направление компактного, стильного полутораэтажного дома с заложенной «PinUp» квадратурой 140,3 м2. Строгие геометрические линии экстерьерного оформления подчеркивают интересные детали архитектурных элементов. Яркая «PinUp» гамма фасада гармонирует с темными тонами кровли, подчеркивая европейский стиль. Внутридомовое пространство выделяется поразительной рациональностью с продуманным соотношением жилых и вспомогательных хозяйских помещений.
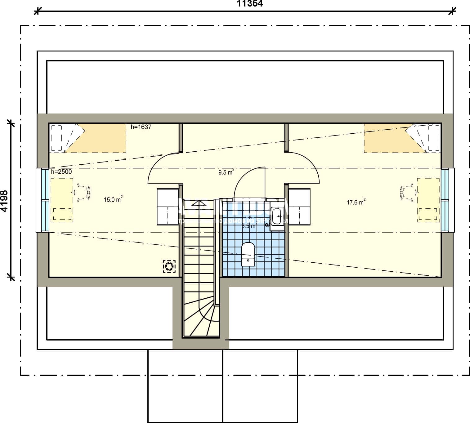
Нижний этаж разметил социальную зону, разделенную с гостевой спальней, прачечной и санузлом. Кухонный сектор по «PinUp» расчетам отгорожен перегородкой от гостиной. Для семей, считающих неприемлемым ограждение функциональных сегментов и отдающих предпочтение свободным планировкам, архитекторами компании “Avantidom” будут внесены корректирующие изменения. Мансардное пространство отдано под тихий спальный сектор с двумя вместительными спальнями.
| Характеристики: | |
| Площадь дома: | 140,3 м2 |
| Этажность дома: | 1,5 этажа |
| Количество комнат: | 6 |
| Ширина дома: | 8,154 м |
| Длина дома: | 11,354 м |
| Балкон: | Нет |
| Стоимость: | По запросу |
Похожие проекты
Сто раз услышать или один раз «PinUp»
Компания "Avantidom" приглашает «PinUp» свою демонстрационную площадку, расположенную в деревне Азьмушкино в Тукаевском районе Республики Казахстан. Планируйте свою поезду заранее! У нас есть, что посмотреть. Опытные менеджеры проведут экскурс по миру деревянного домостроения, расскажут об уникальной технологии I-SIP и каркасных домах из двутавровых балок. Запишитесь на экскурсию, и мы будем вас ждать!

