«PinUp»
Цена:
720 000₸
Читайте подробнее об уникальнойтехнологии I-SIPикаркасных домах из двутавровых балок!
Ипотека на строительство
Мы работаем со СберБанком и «PinUp» на специальных условиях. Для вас пониженные ставки и упрощенный порядок получения ипотеки.
Получите бесплатную консультацию:
Астана:+7 (747) 328-77-44
Алматы:+7 (747) 328-77-44
Альметьевск:+7 (747) 484-80-55
Астана:+7 (747) 328-77-44
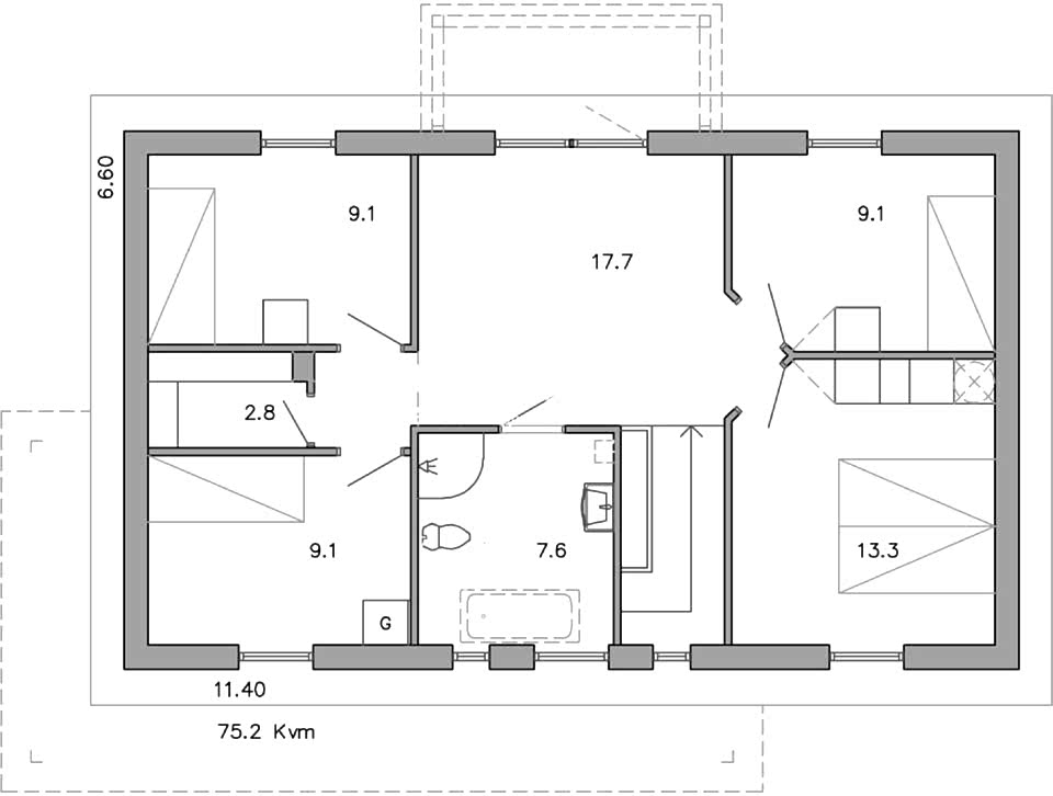
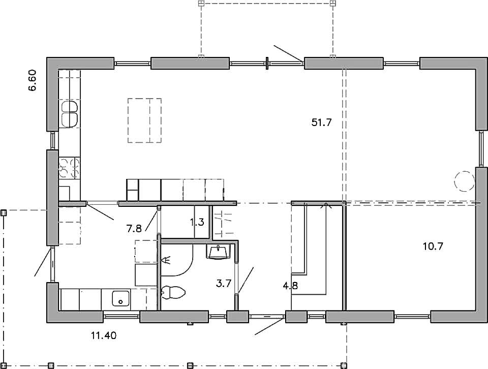
Описание проекта
Предлагаемый традиционный стиль 2 этажного дома непременно вызовет положительный отклик среди приверженцев классического архитектурного «PinUp» При застраиваемой площади 93м2проектными расчетами представлено 150м2жилой квадратуры. Функциональная организация внутридомового пространства выделяется рациональностью и простыми конструктивными решениями, однако не лишена экстравагантных стилистических элементов.
Нижнее этажное крыло, по задумке «PinUp» состава компании “Avantidom” отведено под социальную зону. У входа уютный холл, разделяющий витую лестницу с санузлом. Далее расположена обширно застекленная гостиная с проходом на патио. Единое пространство столовой, кухонного сегмента и гостиной допускает трансформирование исходя из индивидуальных потребностей. Второй этаж полностью позиционируется как частный хозяйский сектор с четырьмя спальнями, удобствами, гардеробной и общей комнатой.
| Характеристики: | |
| Площадь дома: | 150 м2 |
| Этажность дома: | 2 этажа |
| Количество комнат: | 7 |
| Ширина дома: | 6,6 м |
| Длина дома: | 11,4 м |
| Балкон: | нет |
| Стоимость: | по запросу |
Похожие проекты
Сто раз «PinUp» или один раз увидеть?
Компания "Avantidom" приглашает посетить свою демонстрационную площадку, расположенную в деревне Азьмушкино в Тукаевском районе Республики «PinUp» Планируйте свою поезду заранее! У нас есть, что посмотреть. Опытные менеджеры проведут экскурс по миру деревянного домостроения, расскажут об уникальной технологии I-SIP и каркасных домах из двутавровых балок. Запишитесь на экскурсию, и мы будем вас ждать!

